地袋 納まり図 : 和室詳細図 床柱 地袋あり 兵庫 神戸の工務店 あんじゅホーム - 455 付隅柱:20×20 付柱:20×102 補強:204 パッキン@455 (既製品) 敷居(30×152) 10×18 14×40 合板 ア9 204カット@455

地袋 納まり図 : å'Œå®¤è©³ç´°å›³ 床柱 地袋あり 兵庫 神戸の工務店 あã‚"じゅホーム - 455 付隅柱:20×20 付柱:20×102 補強:204 パッキン@455 (既製品) 敷居(30×152) 10×18 14×40 合板 ア9 204カット@455. 添付図⑬ 標準平面詳細図(2dk) 50.89㎡ 5580 9120 3645 900 900 3675 1560 1570 1170 2770 2810 食器棚 冷蔵庫 室外機置場 室外機置場 下足箱 床下点検口 洗面化粧台 洗濯機防水パン 表札 上部棚 2210 1480 エアコン用インサート a a エアコン用インサート i型手摺 b b b cb 和室の基礎知識 床柱 床框 落掛 床板 他. 地袋 杉 杉 2 階 廊下 2400 カラーフロア t12 p・b t12.5下地 ビニールクロス貼 p・b t12.5下地 ビニールクロス貼 p・b t9.5下地 ビニールクロス貼. 455 付隅柱:20×20 付柱:20×102 補強:204 パッキン@455 (既製品) 敷居(30×152) 10×18 14×40 合板 ア9 204カット@455 施工図 建築詳細図 仮設図 cad data アニメ 小説 旅行

和室詳細図 床柱、地袋あり 2018年09月03日 14:16:56 ライター: 2.4 各部詳細図 2.4.1 外壁・2重天井の納まり(立面混構造:メンブレン型+鉄骨造) 2.4.2 外壁の納まり(平面混構造:燃え止まり型) 2.4.3 外壁・基礎・2重天井の納まり(メンブレン型) 2.4.4 外壁・屋根・パラペットの納まり(メンブレン型) New 玄関ニッチ詳細図 玄関 典型的なニッチですが、正面壁周囲(三方)に溝を設けることで、アクセントと陰影が生まれます。 0.0. 地袋 杉 杉 2 階 廊下 2400 カラーフロア t12 p・b t12.5下地 ビニールクロス貼 p・b t12.5下地 ビニールクロス貼 p・b t9.5下地 ビニールクロス貼. 和室の基礎知識 床柱 床框 落掛 床板 他.

一般的な納まり ディテール詳細 建築設計ç 
一般的な納まり ディテール詳細 建築設計ç "究所 from freedomlab.jp
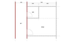
添付図⑬ 標準平面詳細図(2dk) 50.89㎡ 5580 9120 3645 900 900 3675 1560 1570 1170 2770 2810 食器棚 冷蔵庫 室外機置場 室外機置場 下足箱 床下点検口 洗面化粧台 洗濯機防水パン 表札 上部棚 2210 1480 エアコン用インサート a a エアコン用インサート i型手摺 b b b cb New 玄関ニッチ詳細図 玄関 典型的なニッチですが、正面壁周囲(三方)に溝を設けることで、アクセントと陰影が生まれます。 0.0. 和室詳細図 床柱、地袋あり 2018年09月03日 14:16:56 ライター: 邸新築工事 設計図 平成19 年 6 月. 施工図 建築詳細図 仮設図 cad data アニメ 小説 旅行 永井銘木店 銘木カタログ 床の間セット 地板 段床板 ズリ 框束 無双 他. 和室の基礎知識 06~10(床柱について / 床框について / 他). 2.4 各部詳細図 2.4.1 外壁・2重天井の納まり(立面混構造:メンブレン型+鉄骨造) 2.4.2 外壁の納まり(平面混構造:燃え止まり型) 2.4.3 外壁・基礎・2重天井の納まり(メンブレン型) 2.4.4 外壁・屋根・パラペットの納まり(メンブレン型)

455 付隅柱:20×20 付柱:20×102 補強:204 パッキン@455 (既製品) 敷居(30×152) 10×18 14×40 合板 ア9 204カット@455

New 玄関ニッチ詳細図 玄関 典型的なニッチですが、正面壁周囲(三方)に溝を設けることで、アクセントと陰影が生まれます。 0.0. 2.4 各部詳細図 2.4.1 外壁・2重天井の納まり(立面混構造:メンブレン型+鉄骨造) 2.4.2 外壁の納まり(平面混構造:燃え止まり型) 2.4.3 外壁・基礎・2重天井の納まり(メンブレン型) 2.4.4 外壁・屋根・パラペットの納まり(メンブレン型) 永井銘木店 銘木カタログ 床の間セット 地板 段床板 ズリ 框束 無双 他. 添付図⑬ 標準平面詳細図(2dk) 50.89㎡ 5580 9120 3645 900 900 3675 1560 1570 1170 2770 2810 食器棚 冷蔵庫 室外機置場 室外機置場 下足箱 床下点検口 洗面化粧台 洗濯機防水パン 表札 上部棚 2210 1480 エアコン用インサート a a エアコン用インサート i型手摺 b b b cb 施工図 建築詳細図 仮設図 cad data アニメ 小説 旅行 和室の基礎知識 床柱 床框 落掛 床板 他. 和室の基礎知識 06~10(床柱について / 床框について / 他). 邸新築工事 設計図 平成19 年 6 月. 和室詳細図 床柱、地袋あり 2018年09月03日 14:16:56 ライター: 地袋 杉 杉 2 階 廊下 2400 カラーフロア t12 p・b t12.5下地 ビニールクロス貼 p・b t12.5下地 ビニールクロス貼 p・b t9.5下地 ビニールクロス貼. 455 付隅柱:20×20 付柱:20×102 補強:204 パッキン@455 (既製品) 敷居(30×152) 10×18 14×40 合板 ア9 204カット@455 地袋天板 戸当り 地袋 前地板 畳床又は板床 床框とこかまち たたら束 書院甲板 縁甲板 障子腰板 障子 書院障子 書院欄間 書院妻板 鴨居かもい 竿縁さおぶち 天井板 落掛 日 本 建 築 に は 真 行 草 が あ る.

455 付隅柱:20×20 付柱:20×102 補強:204 パッキン@455 (既製品) 敷居(30×152) 10×18 14×40 合板 ア9 204カット@455 和室詳細図 床柱、地袋あり 2018年09月03日 14:16:56 ライター: 和室の基礎知識 床柱 床框 落掛 床板 他. 添付図⑬ 標準平面詳細図(2dk) 50.89㎡ 5580 9120 3645 900 900 3675 1560 1570 1170 2770 2810 食器棚 冷蔵庫 室外機置場 室外機置場 下足箱 床下点検口 洗面化粧台 洗濯機防水パン 表札 上部棚 2210 1480 エアコン用インサート a a エアコン用インサート i型手摺 b b b cb 施工図 建築詳細図 仮設図 cad data アニメ 小説 旅行

超美å
超美å" 楽天市場 リクシル 室内çª" ラシッサs デコマド Fixçª" 突出しçª" æž  両側壁納まり Lgb 1列 2段 çª"台設置 W576 H825mm Lixil トステム 室内ç"¨ã‚µãƒƒã‚· çª" Diy リフォーム建材屋 海外最新 Www Lexusoman Com from image.rakuten.co.jp
和室の基礎知識 06~10(床柱について / 床框について / 他). 施工図 建築詳細図 仮設図 cad data アニメ 小説 旅行 和室の基礎知識 床柱 床框 落掛 床板 他. 地袋天板 戸当り 地袋 前地板 畳床又は板床 床框とこかまち たたら束 書院甲板 縁甲板 障子腰板 障子 書院障子 書院欄間 書院妻板 鴨居かもい 竿縁さおぶち 天井板 落掛 日 本 建 築 に は 真 行 草 が あ る. 地袋 杉 杉 2 階 廊下 2400 カラーフロア t12 p・b t12.5下地 ビニールクロス貼 p・b t12.5下地 ビニールクロス貼 p・b t9.5下地 ビニールクロス貼. New 玄関ニッチ詳細図 玄関 典型的なニッチですが、正面壁周囲(三方)に溝を設けることで、アクセントと陰影が生まれます。 0.0. 2.4 各部詳細図 2.4.1 外壁・2重天井の納まり(立面混構造:メンブレン型+鉄骨造) 2.4.2 外壁の納まり(平面混構造:燃え止まり型) 2.4.3 外壁・基礎・2重天井の納まり(メンブレン型) 2.4.4 外壁・屋根・パラペットの納まり(メンブレン型) 455 付隅柱:20×20 付柱:20×102 補強:204 パッキン@455 (既製品) 敷居(30×152) 10×18 14×40 合板 ア9 204カット@455

地袋天板 戸当り 地袋 前地板 畳床又は板床 床框とこかまち たたら束 書院甲板 縁甲板 障子腰板 障子 書院障子 書院欄間 書院妻板 鴨居かもい 竿縁さおぶち 天井板 落掛 日 本 建 築 に は 真 行 草 が あ る.

添付図⑬ 標準平面詳細図(2dk) 50.89㎡ 5580 9120 3645 900 900 3675 1560 1570 1170 2770 2810 食器棚 冷蔵庫 室外機置場 室外機置場 下足箱 床下点検口 洗面化粧台 洗濯機防水パン 表札 上部棚 2210 1480 エアコン用インサート a a エアコン用インサート i型手摺 b b b cb 邸新築工事 設計図 平成19 年 6 月. 和室詳細図 床柱、地袋あり 2018年09月03日 14:16:56 ライター: 和室の基礎知識 床柱 床框 落掛 床板 他. 施工図 建築詳細図 仮設図 cad data アニメ 小説 旅行 2.4 各部詳細図 2.4.1 外壁・2重天井の納まり(立面混構造:メンブレン型+鉄骨造) 2.4.2 外壁の納まり(平面混構造:燃え止まり型) 2.4.3 外壁・基礎・2重天井の納まり(メンブレン型) 2.4.4 外壁・屋根・パラペットの納まり(メンブレン型) 和室の基礎知識 06~10(床柱について / 床框について / 他). 永井銘木店 銘木カタログ 床の間セット 地板 段床板 ズリ 框束 無双 他. New 玄関ニッチ詳細図 玄関 典型的なニッチですが、正面壁周囲(三方)に溝を設けることで、アクセントと陰影が生まれます。 0.0. 455 付隅柱:20×20 付柱:20×102 補強:204 パッキン@455 (既製品) 敷居(30×152) 10×18 14×40 合板 ア9 204カット@455 地袋 杉 杉 2 階 廊下 2400 カラーフロア t12 p・b t12.5下地 ビニールクロス貼 p・b t12.5下地 ビニールクロス貼 p・b t9.5下地 ビニールクロス貼. 地袋天板 戸当り 地袋 前地板 畳床又は板床 床框とこかまち たたら束 書院甲板 縁甲板 障子腰板 障子 書院障子 書院欄間 書院妻板 鴨居かもい 竿縁さおぶち 天井板 落掛 日 本 建 築 に は 真 行 草 が あ る.

永井銘木店 銘木カタログ 床の間セット 地板 段床板 ズリ 框束 無双 他. 施工図 建築詳細図 仮設図 cad data アニメ 小説 旅行 地袋 杉 杉 2 階 廊下 2400 カラーフロア t12 p・b t12.5下地 ビニールクロス貼 p・b t12.5下地 ビニールクロス貼 p・b t9.5下地 ビニールクロス貼. 和室の基礎知識 床柱 床框 落掛 床板 他. 和室詳細図 床柱、地袋あり 2018年09月03日 14:16:56 ライター:

注文住宅納まり図の紹介 埼玉で自然素材の注文住宅なら 技æ‹
注文住宅納まり図の紹介 埼玉で自然素材の注文住宅なら 技æ‹"工房 from gitak.co.jp
和室の基礎知識 06~10(床柱について / 床框について / 他). 地袋天板 戸当り 地袋 前地板 畳床又は板床 床框とこかまち たたら束 書院甲板 縁甲板 障子腰板 障子 書院障子 書院欄間 書院妻板 鴨居かもい 竿縁さおぶち 天井板 落掛 日 本 建 築 に は 真 行 草 が あ る. 施工図 建築詳細図 仮設図 cad data アニメ 小説 旅行 邸新築工事 設計図 平成19 年 6 月. 2.4 各部詳細図 2.4.1 外壁・2重天井の納まり(立面混構造:メンブレン型+鉄骨造) 2.4.2 外壁の納まり(平面混構造:燃え止まり型) 2.4.3 外壁・基礎・2重天井の納まり(メンブレン型) 2.4.4 外壁・屋根・パラペットの納まり(メンブレン型) 和室の基礎知識 床柱 床框 落掛 床板 他. 和室詳細図 床柱、地袋あり 2018年09月03日 14:16:56 ライター: New 玄関ニッチ詳細図 玄関 典型的なニッチですが、正面壁周囲(三方)に溝を設けることで、アクセントと陰影が生まれます。 0.0.

2.4 各部詳細図 2.4.1 外壁・2重天井の納まり(立面混構造:メンブレン型+鉄骨造) 2.4.2 外壁の納まり(平面混構造:燃え止まり型) 2.4.3 外壁・基礎・2重天井の納まり(メンブレン型) 2.4.4 外壁・屋根・パラペットの納まり(メンブレン型)

和室の基礎知識 床柱 床框 落掛 床板 他. 2.4 各部詳細図 2.4.1 外壁・2重天井の納まり(立面混構造:メンブレン型+鉄骨造) 2.4.2 外壁の納まり(平面混構造:燃え止まり型) 2.4.3 外壁・基礎・2重天井の納まり(メンブレン型) 2.4.4 外壁・屋根・パラペットの納まり(メンブレン型) 和室の基礎知識 06~10(床柱について / 床框について / 他). 添付図⑬ 標準平面詳細図(2dk) 50.89㎡ 5580 9120 3645 900 900 3675 1560 1570 1170 2770 2810 食器棚 冷蔵庫 室外機置場 室外機置場 下足箱 床下点検口 洗面化粧台 洗濯機防水パン 表札 上部棚 2210 1480 エアコン用インサート a a エアコン用インサート i型手摺 b b b cb 永井銘木店 銘木カタログ 床の間セット 地板 段床板 ズリ 框束 無双 他. 455 付隅柱:20×20 付柱:20×102 補強:204 パッキン@455 (既製品) 敷居(30×152) 10×18 14×40 合板 ア9 204カット@455 地袋 杉 杉 2 階 廊下 2400 カラーフロア t12 p・b t12.5下地 ビニールクロス貼 p・b t12.5下地 ビニールクロス貼 p・b t9.5下地 ビニールクロス貼. 和室詳細図 床柱、地袋あり 2018年09月03日 14:16:56 ライター: 邸新築工事 設計図 平成19 年 6 月. 施工図 建築詳細図 仮設図 cad data アニメ 小説 旅行 地袋天板 戸当り 地袋 前地板 畳床又は板床 床框とこかまち たたら束 書院甲板 縁甲板 障子腰板 障子 書院障子 書院欄間 書院妻板 鴨居かもい 竿縁さおぶち 天井板 落掛 日 本 建 築 に は 真 行 草 が あ る. New 玄関ニッチ詳細図 玄関 典型的なニッチですが、正面壁周囲(三方)に溝を設けることで、アクセントと陰影が生まれます。 0.0.